pearl gallery
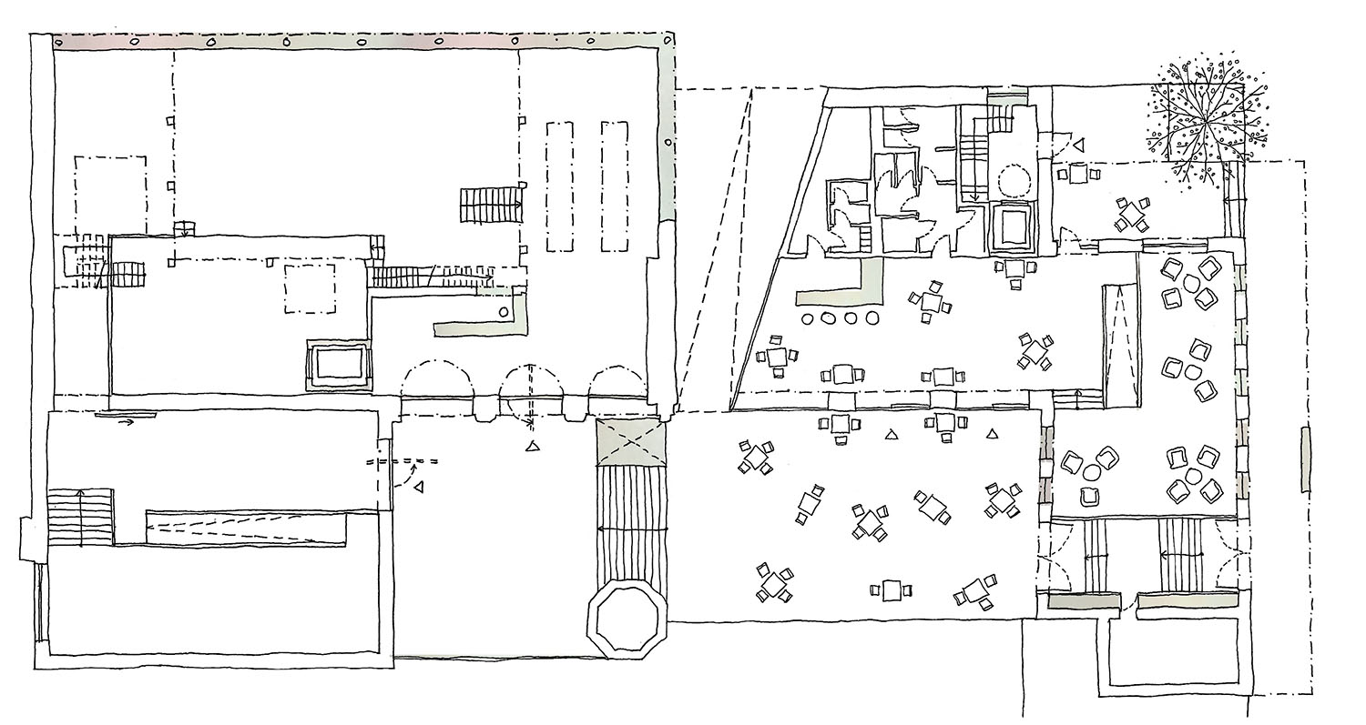
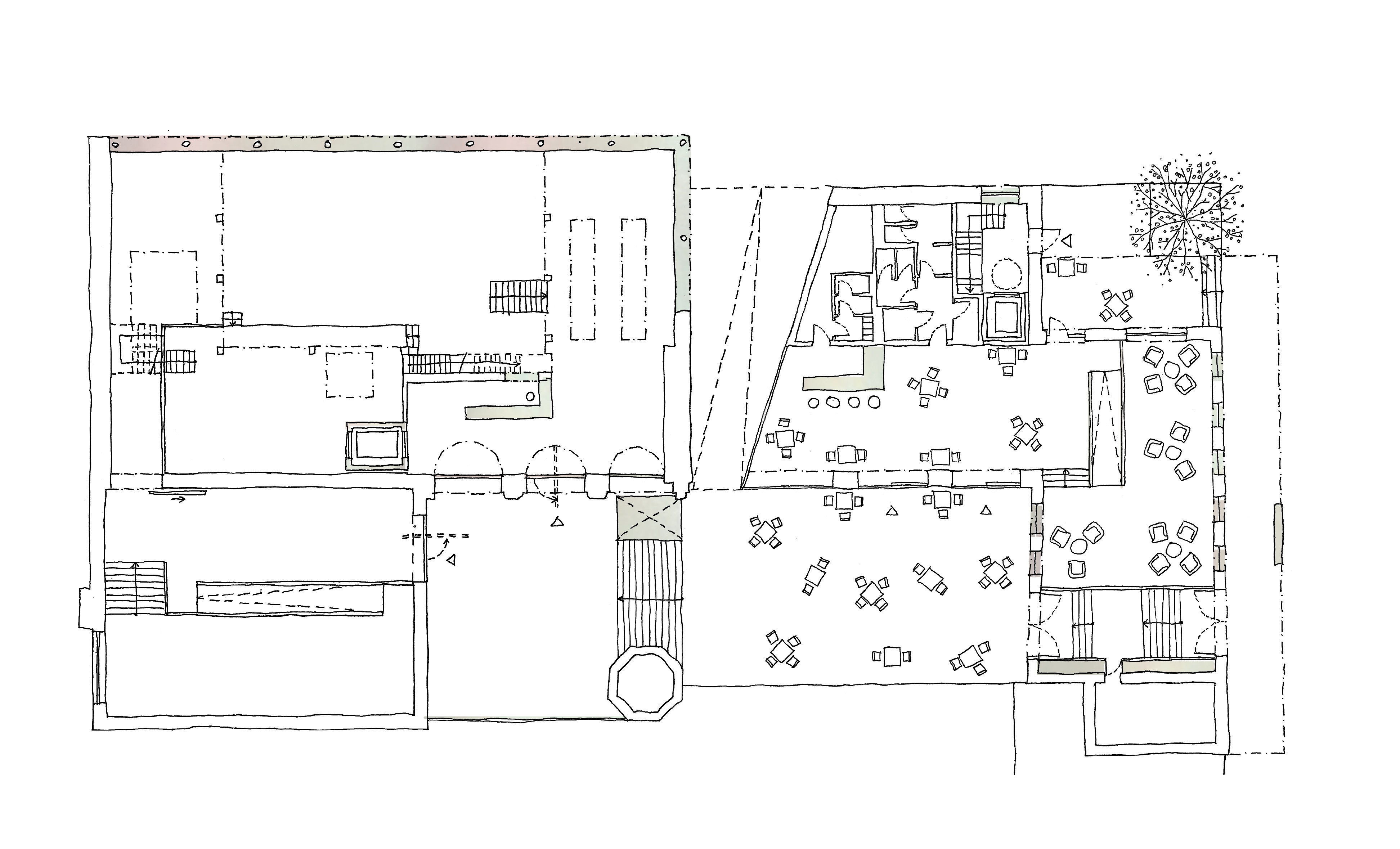
The hand-drawn illustrations for the “Pearl Gallery” project in Czech Republic, aim to highlight the delicate pearl patterns and distinguish the existing and new architecture in a straightforward yet artistic way. These drawings bring out the beauty of the design, combining old and new elements in a humble, elegant manner that reflects the project’s essence








My role: conceptual project illustrator
Main tasks: Create the concept drawings, representing the main idea of the project
Client / architecture studio: Chybik + Kristof Architects & Urban Designers
Graphic team: Laura Emilija Druktenytė
Product: Illustrations and concept drawings
Year: 2023
Published: chkau

Leave a comment